01278 554 333

Pit Hill Lane, Moorlinch

£699,950
5
3
4
  • Availability: For Sale
  • Bedrooms: 5
  • Bathrooms: 3
  • Reception Rooms: 4
  • Council Tax Band: F
  • Tenure: Freehold

Call us today


Make Enquiry

Property Summary

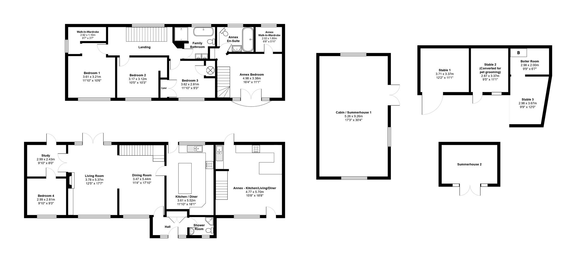
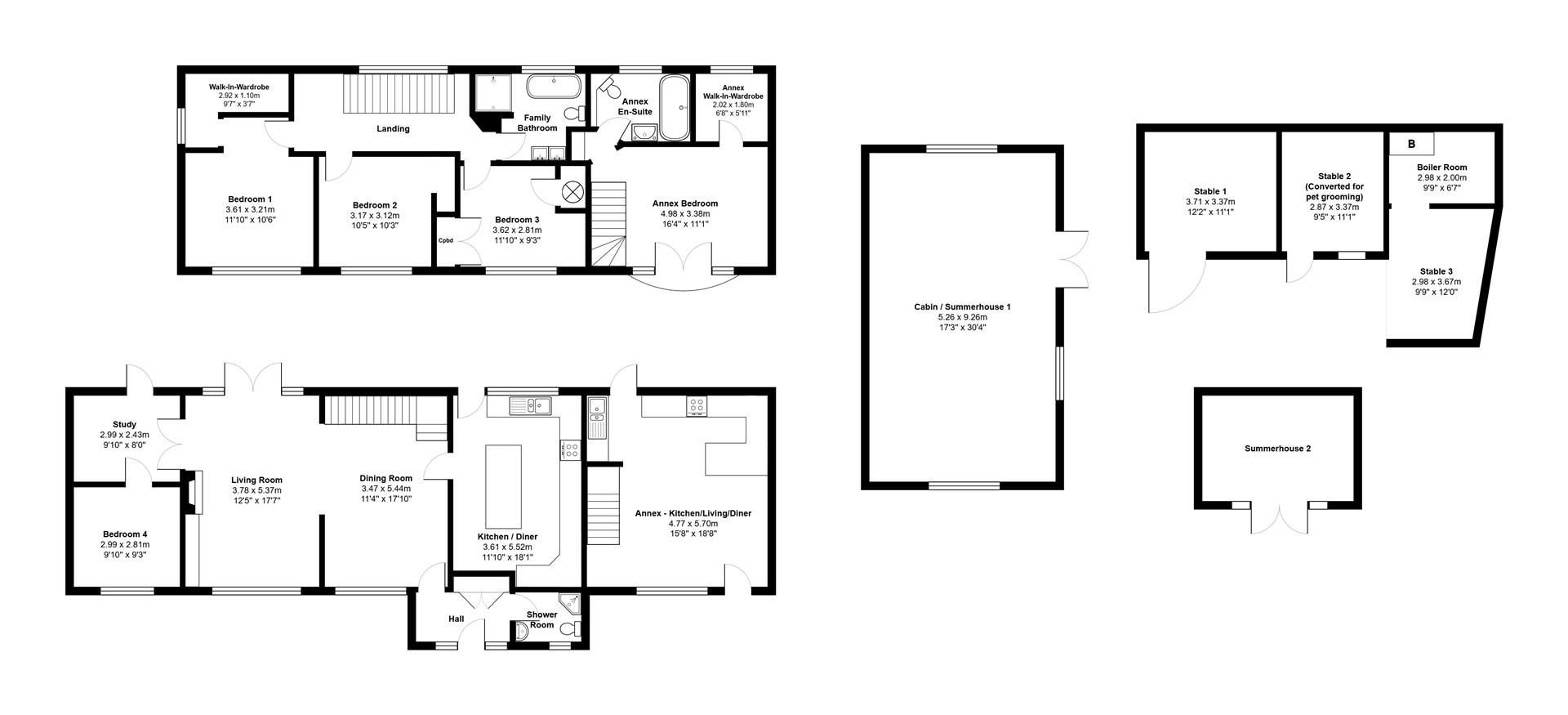
Presenting this detached, spacious family home with annexe, outbuildings and stables, all set on a large 0.81 acre plot!

Briefly the main property hosts an entrance hall with storage and shower room. A spacious dining room with open archway into the living room. The living room boasts dual aspect light, wood burner and French doors leading onto the patio. A modern kitchen/diner with central island, ample worktop & unit space, some appliances and stable door to the rear garden. A study, currently used as a fifth bedroom. A well-proportioned double bedroom on the ground floor.

A glass staircase leads up to the first floor. The master bedroom is a spacious double bedroom with views and a walk-in-wardrobe. The second bedroom is another double size room with views and storage space. The third bedroom is a large single with views, airing cupboard and built in storage. The modern family bathroom hosts a four piece suite comprising walk-in-shower, bath, toilet and his & hers basins.

The annex hosts an open plan kitchen/living/diner with ample worktop & unit space, integrated appliances, breakfast bar, rear door and generous entertaining/hosting space. Stairs lead up to the spacious double bedroom with French doors & balcony, walk-in-wardrobe and an en-suite bathroom comprising toilet, basin and bath with rainfall shower head.

The front of the property hosts a large drive for multiple cars and a lawn with borders.
The generously sized rear garden boasts a tiered patio with steps to the lawn. A summerhouse, in need of the finishing touches, with power & light. A second summerhouse. Side access with track to the stables and the paddock, found at the end of the garden.

The property benefits from LPG gas central heating, solar panels & double glazing.

The property is walking distance away a pub, village hall, church and rural walks. Moorlinch is driving distance from the M5 linking you to Exeter, Bristol & beyond.

Tenure: Freehold
EPC: D
Council tax band: F

Full Details

Hall

Dining Room 3.47m x 5.44m (11'4" x 17'10")

Living Room 3.78m x 5.37m (12'4" x 17'7")

Kitchen / Diner 3.61m x 5.52m (max) (11'10" x 18'1" (max))

Study 2.99m x 2.43m (9'9" x 7'11")

Bedroom 4 2.99m x 2.81m (9'9" x 9'2")

Shower Room 1.86m x 1.39m (6'1" x 4'6")

Stairs & Landing

Bedroom 1 3.61m x 3.21m (11'10" x 10'6" )

Bedroom 1 Walk-In-Wardrobe 2.92m (max) x 1.10m (min) (9'6" (max) x 3'7" (min)

Bedroom 2 3.17m x 3.12m (10'4" x 10'2")

Bedroom 3 3.62m (max) x 2.81m (max) (11'10" (max) x 9'2" (ma

Family Bathroom 3.11m (max) x 2.44m (10'2" (max) x 8'0")

Annex - Kitchen / Living / Diner 4.77m x 5.70m (15'7" x 18'8")

Annex - Bedroom 4.98m x 3.38m (16'4" x 11'1")

Annex - Walk-In-Wardrobe 2.02m x 1.80m (6'7" x 5'10")

Annex - En-Suite 2.86m x 1.92m (max) (9'4" x 6'3" (max))

Summerhouse 1 / Cabin 5.26m x 9.29m (17'3" x 30'5")

Summerhouse 2

Stable 1 3.71m x 3.37m (12'2" x 11'0")

Stable 2 (converted for pet grooming) 2.87m x 3.37m (9'4" x 11'0")

Stable 3 2.98m (max) x 3.67m (9'9" (max) x 12'0")

Location

Property Features

  • Detached, family home with annex!
  • Four bedrooms and fifth bedroom in annex!
  • 0.81 acre plot including paddock!
  • Three reception rooms and study!
  • Ample parking on the driveway!
  • cabin, summerhouse & stables!
  • Tiered rear garden!
  • Popular village location!
  • LPG gas central heating, wood burner & solar panels!
  • Double glazing!